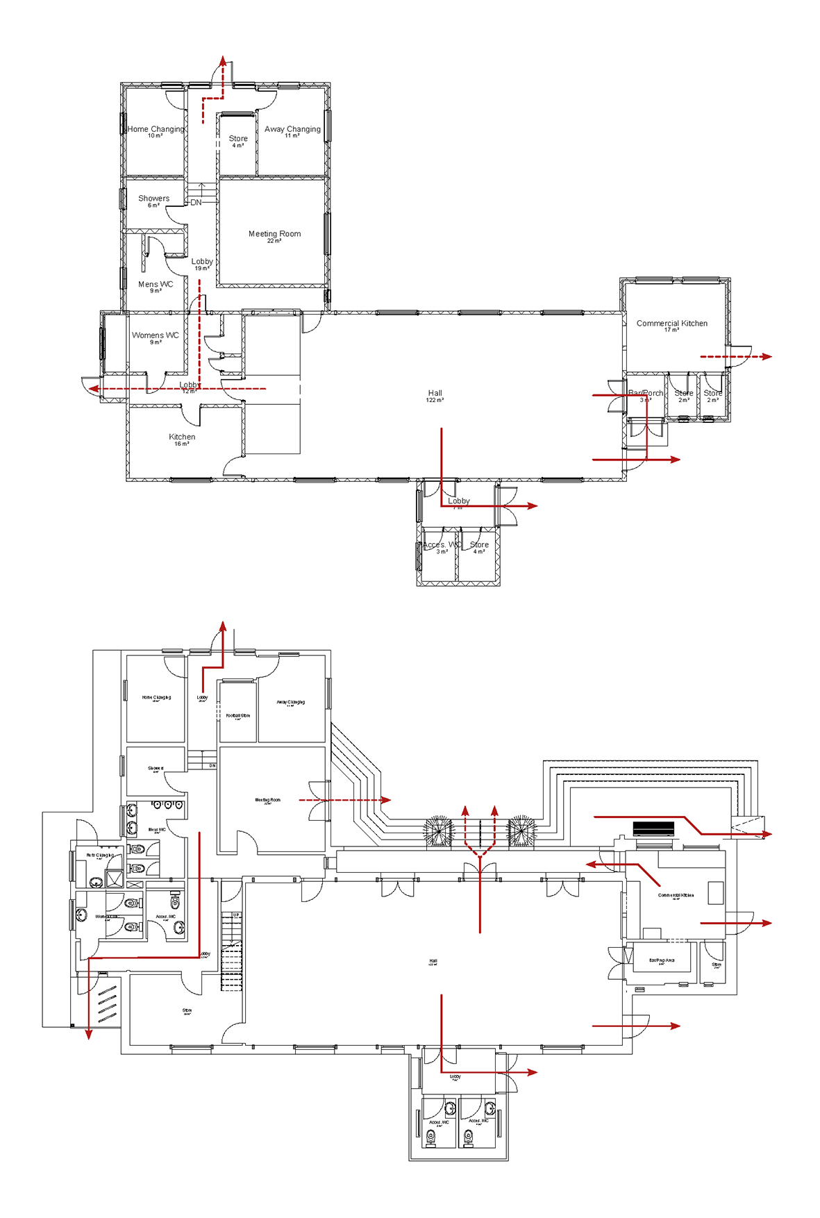
Sitting near the heart of the community since the 1950s, this prefabricated hall with numerous extensions has gone beyond its original design life and so we have been working with the village's trust to secure planning and plan for a full refit of the existing structure. Retaining the building's heritage value throughout, we intend to create a space that is a resilient and enduring host for the next 70 years of village life.